Hier geht es zur Homepage der Stadt Neukirchen-Vluyn
Die Dokumente werden zu Zeit gesichtet, sortiert und bearbeitet. Da es sich zum Teil um Bauzeichnungen oder Lagepläne im Format DIN-A0 handelt müssen diese verkleinert und optimiert werden. Ich bitte daher um etwas Gedult, da mein zeitlicher Rahmen auch nur begrenzt ist.
Leider kann ich diese Pläne momentan nur in der Breite von 300 Pixel einstellen. Eine größere Skalierung wird vorbereitet.
| Anschreiben zum 25. Dienst- jubiläum meines Großvaters am 21.9.1943 (groß) | ©Quelle: privat |

| 3D Ansicht der Schachtanlage | ©Quelle: #06 |

| Der Verfahrensplan der Grob- und Mittelkornaufbereitung (groß) | ©Quelle: #06 |

| Das Telegramm des damaligen Bundeskanzlers Adenauer zu dem Unglück auf der Schachtanlage Niederberg vom 12. November 1958 (link->Dokument in besserer Qualität) | ©Quelle: #17 |

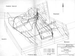
| Raumbild Grubengebäude 1975 (groß) | ©Quelle: DSK/RAG |
| Grubengebäude | ©Quelle: DSK/RAG |

| Grubengebäude | ©Quelle: DSK/RAG |

| Feldbesitz um 1965 | ©Quelle: #19 |
| Die Bunkerstände des Rohwaschkohlenbunkers am 02.10.1992 um 14.oo Uhr: - 1100t Magerkohle - 200t Anthrazit |
©Quelle: #01 |

| Die Telefonliste des Tagesbetriebes im Jahre 1992. Meine Durchwahl war die 2515 | ©Quelle: #01 |

| Katzengold (Pyrid FeS²) aus dem Flöz Girondelle 5, gefunden 1992 | ©Quelle: #01 |

| Pyrideinlagerungen eines Schachtelhalms (?) in einem Bergestück. Herkunft Flöz Girondelle | ©Quelle: #01 |

| Abdruck eines Schachtelhalms auf einem Bergestück | ©Quelle: #01 |

| Lageplan 1989 | ©Quelle: #01 |

| Lageplan 1919 | ©Quelle: #01 |

| Werbung | ©Quelle: #01 |

| Gedenkmünze 100Mio t 1911-1986 | ©Quelle:Achim Trommen |

| Gedenkmünze 100Mio t 1911-1986 | ©Quelle:Achim Trommen |

Besuchen Sie auch meine Seite
www.foerdergerueste.de

