Fahrkunst:
Die Fahrkunst sollte dem Bergmann die langwierigen, gefährlichen und anstrengenden täglichen Auf- und Abstiege auf der Fahrte ersparen. Teilweise waren schon Teufen von über 200 Meter im Ruhrrevier und bis zu 800 Meter im Harz erreicht und die körperlichen Anstrengungen sowie der enorme Zeitverlust schmälerte die Gewinnungsleistung enorm.
Angesichts der vorhandenen Kunstgestänge (vertikale
Pumpgestänge), welche die Pumpen zur Wasserhaltung betrieben, kam
man auf den Gedanken diese auch zur Personenbeförderung zu nutzen.
Die von dem aus Zellerfeld stammenden Ober-Berggeschworenen Georg
Dörell ersonnene erste doppeltwirkende hölzerne Fahrkunst mit einer
Hubhöhe von 1,25 m wurde 1833 im Oberharz auf dem Spiegelthaler
Hoffnung Richtschacht eingebaut. Sie leistete etwa fünf Hübe pro
Minute und arbeitete recht zuverlässig mit einem durch Wasserkraft
angetriebenen Wasserrad. Auf Grund der durchweg guten Ergebnisse
fand diese bald darauf eine größere Verbreitung in Europa, Amerika
und Australien.
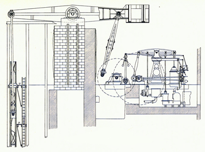
Die erste im Ruhrgebiet errichtete Fahrkunst wurde am 6. Juli 1852 amtlich abgenommen. Der Beschluß zur Anschaffung erfolgte nur etwa ein Jahr (03.07.1851) vor der Inbetriebnahme. Konstruiert und aufgestellt wurde die doppeltwirkende Fahrkunst durch den Maschinenwerksmeister Ehrhardt und hergestellt wurde diese von der Friedrich Wilhelm Hütte aus Mülheim a.d. Ruhr. Die Hütte stellte für die Herstellung 9700 Thaler in Rechnung und für den Einbau mußten noch weitere 2844 Thaler und 15 Silbergroschen aufgewendet werden. Winkeleisen; Fahrtrum 0,8 x 2,0 m; Dampfmaschine: 34 PS, Zylinderdurchmesser: 17,5 Zoll; Hub: 36 Zoll; Schwungradgewicht: 7764 Pfund; Hub des Fahrgestänges: 10 Fuß
Erste und einzige doppeltrümmige Fahrkunst im Ruhrgebiet auf dem Schacht Conrad der Mülheimer Zeche Gewalt aus dem Jahr 1852. Erbaut von der Friedrich-Wilhelm Hütte; Mülheim a.d.Ruhr. Teufe bis zur 6. Tiefbausohle (126 Lachter = 263,5 m). Benötigte Zeit für die Fahrung: 9 Minuten 45 Sekunden.

Die eintrümmige Fahrkunst auf der Zeche Zollverein I wurde 1857 installiert und auf ihr fuhren 600 Bergleute in 110 Lachter Teufe. Hub des Fahrgestänges: 2 Lachter, Fahrkunst ist eingerichtet für 2 Mann pro Fahrbühne; 55 Fahrbühnen im Schacht
Wegen der aufwendigen mechanischen Konstruktion, den hohen Kosten und der notwendigen Beeinträchtigung der Schachtscheibe konnte sich die Fahrkünste aber nicht gegen die Seilfahrt (ab 1859 wurde die Seilfahrt durch die Bergbehörde erlaubt) durchsetzten. Im Jahr 1861 wird auf Concordia II (Schacht Flashoff) mit dem Bau der letzten Fahrkunst begonnen, welche 1865 in Betrieb genommen wird. Diese wird aber bereits 1883 wieder stillgelegt. Im Durchschnitt wurden die Fahrkünste etwa 20 Jahre betrieben, die einzige Ausnahme bildete der Conradschacht, dort wurde die zweitrümige Fahrkunst erst nach einer 50-jährigen Betriebszeit außer Betrieb genommen.
Insgesamt wurden sieben Fahrkünste im Ruhrgebiet erbaut:
| No. | Anlage | Schacht | Ausführung | Material |
| 1.) | Gewalt | Schacht Conrad | 2-trümig | Eisen |
| 2.) | Zollverein | Schacht I | 1-trümig | Eisen |
| 3.) | Oberhausen | Schacht II | 1-trümig | Eisen |
| 4.) | Prosper | Schacht I | 1-trümig | Eisen |
| 5.) | Glückauf Tiefbau | Schacht Traugott | 1-trümig | Holz |
| 6.) | Concordia | Schacht I - Haniel | 1-trümig | Eisen |
| 7.) | Concordia | Schacht II - Flashoff | 1-trümig | Eisen |
Alle Fahrkünste sind noch während der Betriebszeit (Schacht
Traugott?) ausgebaut und durch Seilfahrt ersetzt worden. Somit ist
keine Fahrkunst im Ruhrgebiet erhalten geblieben.
Die einzige erhaltene und noch funktionstüchtige Fahrkunst in
Deutschland kann auf der Grube Samson (Sankt Andreasberg / Harz)
besichtigt werden.